СТРАНИЦА НЕ НАЙДЕНА!
Свежие, новые объявления о продаже, аренде недвижимости, квартиры, комнаты, дома, машиноместа, коммерческая недвижимость в Уфе
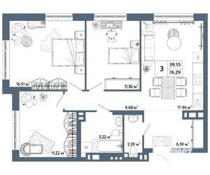
3


Комната в 3-к квартире, 20м², 2/2 этаж
1 000 000 ₽ 50 000 ₽ за м²
Советский район, мкр. Молодёжный, Заводская 184
Цена 1 000 000 руб. Собственник. Возможна ипотека....
8


Комната в 4-к квартире, 13м², 4/5 этаж
888 000 ₽ 68 400 ₽ за м²
Октябрьский район, Комсомольская 100/1
Звоните, приходите, будем вам рады!...
6


Комната в 4-к квартире, 15м², 4/4 этаж
720 000 ₽ 48 000 ₽ за м²
Калининский район, Архитектурная 8
Восьмиэтажка. Состояние в квартире и комнате хорошее, спокойные,доброжелательные соседи. Площадь квартиры 97,4, комнаты 14,7, кухня 7,6, высота потолков 3м. Район с хорошо развитой инфраструктурой, вс...
4
![комната в 3-к квартире, 17м2, 8/9 этаж]()

Комната в 3-к квартире, 17м², 8/9 этаж
960 000 ₽ 56 500 ₽ за м²
Калининский район, Ивана Франко 10
Площадь комнаты 17,4 кв.м. Большая кухня 10,2 кв.м. Коридор - 18 кв.м. Новый кирпичный дом (очень теплый), год постройки 2008. В доме консьерж, видеонаблюдение, два лифта:грузовой и пассажирский. Комн...
2


Комната в коммуналке, на длительный срок, 14м², 9/9 этаж
10 000 ₽ в месяц
Октябрьский район, мкр. Глумилино, Российская 153
В комнате есть мебель, Wi-Fi . На кухне отдельный кухонный гарнитур, электрическая плита, холодильник. Соседи хорошие. Рядом остановка Гимназия-интернат №1, ,Горсовет, Ильинский рынок. Цена 10 000 в м...
5


Комната в 2-к квартире, на длительный срок, 20м², 5/9 этаж
5 000 ₽ в месяц
Советский район, мкр. Новиковка, Степана Злобина 34/2
На кухне свой стол, шкаф и полки. В комнате холодильник, микроволновка, двуспальная кровать и шкаф купе и т.д. В ванной стиральная машина, в коридоре вешалка и место для обуви. Вся интересующая вас ин...
Агентство, 12.05.2022
3


Комната в коммуналке, на длительный срок, 9м², 1/5 этаж
7 000 ₽ в месяц
Орджоникидзевский район, ЖК 28-й, Мира 17
ается комната в коммунальной квартире на 3х соседей от собственника.Спокойный двор,остановка очень близко.Рядом нефтенной университет.В р-не Дворца Орджанекидзе.чисто, уютно, свежий ремонт.Так же имее...
1
![Комната в 2-к квартире, на длительный срок, 17м2, 5/13 этаж]()

Комната в 2-к квартире, на длительный срок, 17м², 5/13 этаж
5 000 ₽ в месяц
Кировский район, мкр. Кузнецовский Затон, Геологов 53
Комната с балконом, закрывается на ключ. Квартира со всеми удобствами: мебель, посуда, бытовая техника. Спокойный район, магазины в шаговой доступности. Звоните: Восемь девятьсот девятнадцать тридцат...
Агентство, 03.11.2022
2

Участок 4 сот., садоводство, в черте города
410 000 ₽ 1 100 ₽ за сотку
Дёмский район, Крайняя 144
Дорога круглый год. На участке летний домик, туалет, плодовые насаждения, ручей, родник....
Собственник, 24.01.2021
1


Участок 8 сот., ИЖС, в черте города
660 000 ₽ 900 ₽ за сотку
Калининский район, мкр. Шакша, Шакшинская 86
одается доля в доме и земельном участке ниже кадастровой стоимости.
Небольшой торг возможен.
Доля в доме - 34, 8 кв.м. (общая площадь дома 206.5 кв.м.)
Доля в земельном участке 7.78 сот. (общая пло...
Собственник, 11.01.2023
1

Участок 10 сот., ИЖС, 8 км от города
450 000 ₽ 500 ₽ за сотку
Почтовая 22
Продается земельный участок 10 соток земли, 8 километров от Уфы до самого участка подъезд круглый год Торг уместен. Без посредников и риелторов. Жилая улица, электролиния. Подъезд круглый год, торг ум...
Собственник, 16.05.2022
2
![Участок 10 сот., ИЖС, 30 км от города]()

Участок 10 сот., ИЖС, 30 км от города
170 000 ₽ 200 ₽ за сотку
Шаймуратова 36
Земли поселений (земли населенных пунктов)
Для блокированной жилой застройки. Площадь каждого участка 10 соток. Участки ровные, без каких-либо построений. Электричество подведено, участки размежеваны...
Агентство, 28.03.2022
1


Гараж, 18 м²
250 000 ₽ 13 900 ₽ за м²
Орджоникидзевский район, Рыбакова 13
Общая площадь 18,5 м². Является собственностью, приватизирован.
Инфраструктура:
- "Колхозный рынок"
Рядом остановка в любую часть города.
Чистая, свободная продажа:
- один взрослый собственник;
...
Собственник, 16.04.2023
8

Гаражный бокс, 17 м²
670 000 ₽ 39 500 ₽ за м²
Кировский район, ЖК Самоцветы, Генерала Горбатова 8
Район фабрики «Конди» (район ЖК «Самоцветы»).
Размер по наружному обмеру - 19 кв.м., по внутреннему - 17 кв.м. Высота - 2,7 кв.м. Вентиляция, электричество, охрана. Пол бетонный, крыша не протекает (...
Собственник, 29.06.2021
4


Гараж, 18 м²
450 000 ₽ 25 000 ₽ за м²
Октябрьский район, мкр. Сипайлово, Сипайловская 12
Рядом Лента и новый жилой комплекс Маяк. Комплекс с охраной и въездом по пропускам. Удобно для коммерции, склада. Снег зимой чистят постоянно. Удобный выезд из гк на сипайловскую. Здание бетонное капи...
Собственник, 08.06.2021
3


Помещение свободного назначения, 1850 м²
40 755 000 ₽ 22 100 ₽ за м²
Октябрьский район, Уфимское Шоссе 36/1
Общая площадь 1 850, 8 кв.м....
Собственник, 27.04.2021
4


Помещение свободного назначения, 170 м²
500 ₽ 100 ₽ за м²
Советский район, бульвар Ибрагимова 88
ается помещение в центре города.
Подойдет под бойцовские клубы, сауны, лазертаг, бильярдная, складское помещение. ...
Собственник, 20.07.2020
11


Помещение свободного назначения, 373 м²
29 000 ₽ 100 ₽ за м²
Орджоникидзевский район, Матвея Пинского 3
Матвея Пинского д. 3
Площадь 372, 7 м2
Характеристики: весь подвал четырехэтажного жилого дома, 3 отдельных входных группы, возможна организация дополнительного входа со стороны Нефтяного университ...
Собственник, 16.03.2022
4
![Помещение свободного назначения, 688 м²]()

Помещение свободного назначения, 688 м²
12 317 000 ₽ 18 000 ₽ за м²
Октябрьский район, Уфимское Шоссе 36/1
Общая площадь 688,8 кв.м....
Собственник, 27.04.2021
15

Помещение свободного назначения, 71 м²
84 720 ₽ в месяц
Орджоникидзевский район, ЖК Идель, проспект Октября 107А
ается в аренду помещение в центре города, в новом жилом комплексе Идель Тауэр.
Сделан новый ремонт. ...
Собственник, 20.07.2020
2


Офисное помещение, 20 м²
12 000 ₽ в месяц
Советский район, Пархоменко 156
Развитая инфраструктура. ...
Собственник, 20.07.2020
Закладки
Личный кабинет

































































































