СТРАНИЦА НЕ НАЙДЕНА!
Свежие, новые объявления о продаже, аренде недвижимости, квартиры, комнаты, дома, машиноместа, коммерческая недвижимость в Уфе
4


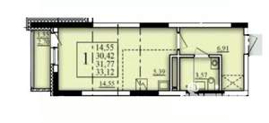
Комната в 3-к квартире, 12м², 2/2 этаж
650 000 ₽ 54 200 ₽ за м²
Орджоникидзевский район, переулок Кулибина 7/28
одаётся комната в трёх комнатной квартире общая площадь 12кв.м, кухня 6кв.м ,прихожая 8 кв.м, тихое место, остановка рядом, чистая продажа, документы готовы....
6


Комната в 3-к квартире, 12м², 1/5 этаж
590 000 ₽ 49 200 ₽ за м²
Кировский район,
Кухня 9 кв.м, большой коридор. Санузел раздельный. Места общего пользования в хорошем, чистом состоянии. Все видно на фото. Летом не жарко, а зимой очень тепло! Рядом Мега. Приезжайте смотреть! Хороши...
8


Комната в 3-к квартире, 18м², 2/2 этаж
900 000 ₽ 50 000 ₽ за м²
Орджоникидзевский район, Кольцевая 113А
одается комната с ремонтом, теплая, светлая, соседи в соседних комнатах не проживают, санузел совмещенный, дом 1952 года постройки, высота потолков 2.9 м., вся квартира в хорошем состоянии, соседи пор...
8
![комната в коммуналке, 14м2, 5/6 этаж]()

Комната в коммуналке, 14м², 5/6 этаж
1 250 000 ₽ 89 300 ₽ за м²
Кировский район, Ленина 3/100
Ленина, д.2. Рядом Советская площадь, Гостиный двор, парк Матросова, стадион Динамо,несколько ВУЗов, Гимназия №3 по прописке!!! Комната квадратная на 2 окна (пластиковые), высокие потолки, соседи женщ...
2


Комната в 2-к квартире, на длительный срок, 18м², 9/9 этаж
7 500 ₽ в месяц
Кировский район, Батырская 16
В квартире есть всё для комфортного проживания, кроме стиральной машины!!! Требования: без животных и детей младше школьного возраста, оплата без задержек 7500+ по счетчикам водоснабжения и электричес...
3


Комната в 3-к квартире, на длительный срок, 14м², 4/5 этаж
7 000 ₽ в месяц
Калининский район, Первомайская 37
Первомайская 37,рядом с остановкой Победа". Развитая инфраструктура. Ламинат, стеклопакеты, балкон, телевизор, холодильник, столы, стулья, новый диван, встроенный шкаф - купе, эл.чайник. Оплата 7000 +...
3


Комната в 2-к квартире, на длительный срок, 16м², 11/20 этаж
6 000 ₽ в месяц
Ленинский район, Гоголя 78
мната в двухкомнатной квартире, сдается на длительный срок вторая комната закрыта на ключ(без подселение), дополнительно оплачиваете счетчики свет+вода
...
Агентство, 19.02.2021
3
![Комната в 3-к квартире, на длительный срок, 18м2, 2/5 этаж]()

Комната в 3-к квартире, на длительный срок, 18м², 2/5 этаж
8 000 ₽ в месяц
Октябрьский район, проспект Октября 74
Чисто и аккуратно в квартире. Из техники есть стиральная машинка автомат, холодильник, свч. Соседи семейные люди.Фото соответствуют реальности....
2


Участок 10 сот., ИЖС, 30 км от города
170 000 ₽ 200 ₽ за сотку
Шаймуратова 36
Земли поселений (земли населенных пунктов)
Для блокированной жилой застройки. Площадь каждого участка 10 соток. Участки ровные, без каких-либо построений. Электричество подведено, участки размежеваны...
Агентство, 28.03.2022
2

Участок 4 сот., садоводство, в черте города
410 000 ₽ 1 100 ₽ за сотку
Дёмский район, Крайняя 144
Дорога круглый год. На участке летний домик, туалет, плодовые насаждения, ручей, родник....
Собственник, 24.01.2021
1


Участок 8 сот., ИЖС, в черте города
660 000 ₽ 900 ₽ за сотку
Калининский район, мкр. Шакша, Шакшинская 86
одается доля в доме и земельном участке ниже кадастровой стоимости.
Небольшой торг возможен.
Доля в доме - 34, 8 кв.м. (общая площадь дома 206.5 кв.м.)
Доля в земельном участке 7.78 сот. (общая пло...
Собственник, 11.01.2023
1
![Участок 10 сот., ИЖС, 8 км от города]()
Участок 10 сот., ИЖС, 8 км от города
450 000 ₽ 500 ₽ за сотку
Почтовая 22
Продается земельный участок 10 соток земли, 8 километров от Уфы до самого участка подъезд круглый год Торг уместен. Без посредников и риелторов. Жилая улица, электролиния. Подъезд круглый год, торг ум...
Собственник, 16.05.2022
4


Гараж, 18 м²
450 000 ₽ 25 000 ₽ за м²
Октябрьский район, мкр. Сипайлово, Сипайловская 12
Рядом Лента и новый жилой комплекс Маяк. Комплекс с охраной и въездом по пропускам. Удобно для коммерции, склада. Снег зимой чистят постоянно. Удобный выезд из гк на сипайловскую. Здание бетонное капи...
Собственник, 08.06.2021
8

Гаражный бокс, 17 м²
670 000 ₽ 39 500 ₽ за м²
Кировский район, ЖК Самоцветы, Генерала Горбатова 8
Район фабрики «Конди» (район ЖК «Самоцветы»).
Размер по наружному обмеру - 19 кв.м., по внутреннему - 17 кв.м. Высота - 2,7 кв.м. Вентиляция, электричество, охрана. Пол бетонный, крыша не протекает (...
Собственник, 29.06.2021
1


Гараж, 18 м²
250 000 ₽ 13 900 ₽ за м²
Орджоникидзевский район, Рыбакова 13
Общая площадь 18,5 м². Является собственностью, приватизирован.
Инфраструктура:
- "Колхозный рынок"
Рядом остановка в любую часть города.
Чистая, свободная продажа:
- один взрослый собственник;
...
Собственник, 16.04.2023
4

Помещение свободного назначения, 150 м²
75 000 ₽ 500 ₽ за м²
Советский район, бульвар Ибрагимова 88
аются помещения в ТЦ Три Кита.
...
Собственник, 20.07.2020
8

Офисное помещение, 298 м²
14 920 000 ₽ 50 100 ₽ за м²
Орджоникидзевский район, бульвар Славы 17
Срок окупаемости 7-8 лет.
Потолки 2,50 метром.
Помещения состоят из офисов разных квадратур от 8 м2 до 37 м2 (12 кабинетов) . Помещения всегда востребованы арендаторами 100 %-ая занятость всех каби...
Собственник, 22.03.2021
4


Помещение свободного назначения, 688 м²
12 317 000 ₽ 18 000 ₽ за м²
Октябрьский район, Уфимское Шоссе 36/1
Общая площадь 688,8 кв.м....
Собственник, 27.04.2021
4
![Помещение свободного назначения, 170 м²]()

Помещение свободного назначения, 170 м²
500 ₽ 100 ₽ за м²
Советский район, бульвар Ибрагимова 88
ается помещение в центре города.
Подойдет под бойцовские клубы, сауны, лазертаг, бильярдная, складское помещение. ...
Собственник, 20.07.2020
15

Помещение свободного назначения, 71 м²
84 720 ₽ в месяц
Орджоникидзевский район, ЖК Идель, проспект Октября 107А
ается в аренду помещение в центре города, в новом жилом комплексе Идель Тауэр.
Сделан новый ремонт. ...
Собственник, 20.07.2020
2


Офисное помещение, 20 м²
12 000 ₽ в месяц
Советский район, Пархоменко 156
Развитая инфраструктура. ...
Собственник, 20.07.2020
Закладки
Личный кабинет
































































































